Өнімдер
БАСТЫ > Өнімдер
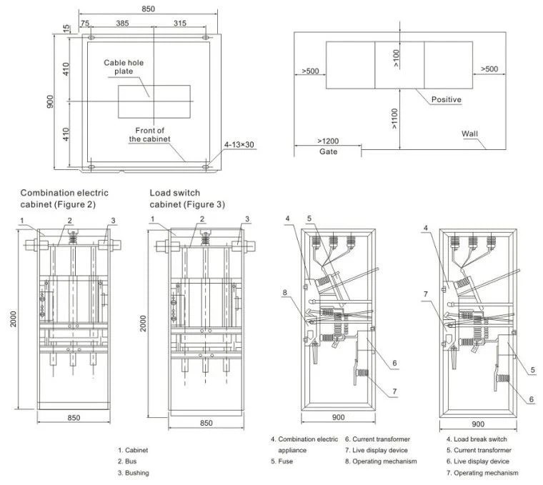
Таратуға арналған 35кВ бекітілген жабық сақиналы тарату құрылғысы
  • Таратуға арналған 35кВ бекітілген жабық сақиналы тарату құрылғысыТаратуға арналған 35кВ бекітілген жабық сақиналы тарату құрылғысы

Таратуға арналған 35кВ бекітілген жабық сақиналы тарату құрылғысы

Comewill - Қытайдағы кәсіби өндіруші. Қуатты таратуға арналған таратуға арналған 35 кВ тіркелген жабық сақиналы тарату құрылғысы (бұдан әрі «сақина негізгі блок» деп аталады). Бұл электр қуатын тарату жүйелері үшін арнайы әзірленген, электр инфрақұрылымы жобаларын сатып алу және таңдау қажеттіліктері үшін жарамды жоғары вольтты тарату құрылғысы және сатып алу шешімдері үшін тамаша таңдау болып табылады.

Тарату желісін басқару мен қорғауға арналған негізгі жабдық ретінде Қытайда өндірілген таратуға арналған жоғары сапалы 35 кВ бекітілген жабық сақиналы тарату құрылғысы қалалық электр желілерін салу және жаңарту жобалары, өнеркәсіптік және тау-кен кәсіпорындары, көпқабатты ғимараттар және қоғамдық нысандар сияқты әртүрлі қолданбалы сценарийлерде сенімді қуатты тұрақты түрде шығара алады.

Бұл бекітілген конструкциялы сақиналы негізгі блок сізге үнемді қуат инфрақұрылымының конфигурациясын ұсына отырып, заманауи электр тарату жүйесін сатып алу үшін таңдаулы өнімге айналды.

Техникалық деректер

Сериялық нөмірі Элемент Бірлік Деректер
1 Номиналды кернеу кВ 12 40.5
2 Номиналды жиілік Hz 50/60
3 Номиналды ток A 630 630/1250
4 Кернеуге қарсы номиналды қуат жиілігі (1 мин) Фазалар және жерге кв 42 95
Қашықтықтарды оқшаулау 48 118
Номиналды найзағайдың импульсті кернеуіне төтеп беру Фазалар және жерге 75 185
Қашықтықтарды оқшаулау 85 215
Қуат жиілігінің төзімді кернеуі (басқару және қосалқы тізбек) 2
5 Номиналды қысқа уақытқа төзімді ток кА 20/25 31.5
6 Номиналды шыңға төзімді ток кА 50/63 80
7 Номиналды қысқа тұйықталу тоғының ұзақтығы s 4 4
8 Номиналды қысқа тұйықталу тогы кА 20/25 31.5
9 Номиналды қысқа тұйықталу тогы кА 50/63 80
10 Доғаның ұзақтығы s 1 1
11 Номиналды жұмыс реті
0-0,3с-CO-3мин-CO
12 Оқшаулағыш газ
SF6
13 Жылдық ағып кету жылдамдығы % ≤ 0,01
14 Стандартты қорғау дәрежесі Жабық газ қорабы
IP67
Коммутатордың қоршауы IP4X
15 Номиналды инфляция қысымы МПа 0.03
Ең төменгі функционалдық қысым деңгейі 0.01
16 Көмекші тізбектің номиналды қоректендіру кернеуі V Тұрақты ток 24, 48, 110, 220, AC220
17 Механикалық өмір Ажыратқыш Операция 10000 11000
Оқшаулағыш қосқыш 5000 3000
Жерге қосқыш 5000 3000
18 Ажыратқыштың электр төзімділігі Операция 30(E2)
19 Қызметтің үздіксіздігін жоғалту
LSC2

Техникалық пайдалану ортасының параметрлері

·Қоршаған орта температурасы: -10°C ~ +40°C
·Биіктігі: Жоғары вольтты ≤1000м; Төмен вольтты ≤2500m (арнайы дизайн диапазоннан тыс сатып алу үшін қол жетімді)
·Салыстырмалы ылғалдылық: ≤85%
·Сейсмикалық қарқындылық: ≤ Магнитудасы 8
· Қоршаған ортаның алғышарттары: өрт/жарылыс қаупі жоқ, қатты ластану, химиялық коррозия, күшті діріл жоқ (сатып алу орны осыған сәйкес болуы керек)

Барлық қызметкерлеріміздің тынымсыз күш-жігерінің арқасында біз таратуға арналған 35 кВ бекітілген жабық сақиналы коммутациялық құрылғы тұтынушыларымыз үшін сенімділік көзі болып қала беруі үшін сапа менеджментін үздіксіз жетілдіреміз. Біздің мақсатымыз – тұтынушылардың қанағаттануын барынша арттыра отырып, ең жан-жақты тестілеу жүйесін және ең қолайлы шешімдерді ұсыну. Біз бірінші кезекте тұтынушы, нарыққа бағдарлану және тиімділік қағидаттарын ұстанамыз және дарындылығымызды үздіксіз дамытамыз.

Hot Tags: металл қоршалған сақина негізгі блок, Қытай, өндірушілер, зауыт, баға, 630A ауа жүктемесін ажыратқыш қосқыш, ішкі 24кв газ LBS, SF6 айырғыш қосқыш, сыртқы фарфор қапталған вакуумдық ажыратқыш, бірфазалы кернеу трансформаторы, В 20-дық кернеу трансформаторы Коммутаторлар

Hot Tags: Таратуға арналған 35 кВ бекітілген жабық сақиналы тарату құрылғысы, Қытай, өндіруші, жеткізуші, зауыт, көтерме, тапсырыс бойынша, қоймада, Қытайда жасалған, төмен баға, сапа
Сұрау жіберу
Байланыс ақпараты
  • Мекенжай

    №777 Ванвенг жолы, Вэньян шағын ауданы, Юэцин қаласы, Вэньчжоу қаласы, Чжэцзян провинциясы, Қытай

  • Электрондық пошта

    hannah@comewill.com

Коммутаторлар, вакуумдық ажыратқыштар, ток трансформаторы үшін Comewill компаниясына сұраныс жіберіңіз. Біздің Қытайдағы зауыт командасынан теңшелген баға ұсыныстарын, төмен бағаларды немесе сарапшылық қолдауды алыңыз.
X
Біз cookie файлдарын сізге жақсырақ шолу тәжірибесін ұсыну, сайт трафигін талдау және мазмұнды жекелендіру үшін пайдаланамыз. Осы сайтты пайдалану арқылы сіз cookie файлдарын пайдалануымызға келісесіз. Құпиялылық саясаты
Қабылдамау Қабылдау